kledek@yandex.ru
8 800 770-76-03
Заказать звонок
Рассчитать свой проект
Меню
Главная
Технология
Производство
О нас
Фотогалерея
Контакты
Дом до 100 кв.м
Дом 100-200 кв.м
Дом от 200 кв.м
Бани
Малые Формы
Главная
Проекты домов из клееного бруса более 200 кв. м.
Серебряный ручей
распечатать
Назад
Задать вопрос
Перезвонить мне
Узнать стоимость
Проект "Серебряный ручей"
Площадь: 267.7 м
2
КДК
86
Стоимость комплекта
от
8076000
руб.
Первый этаж
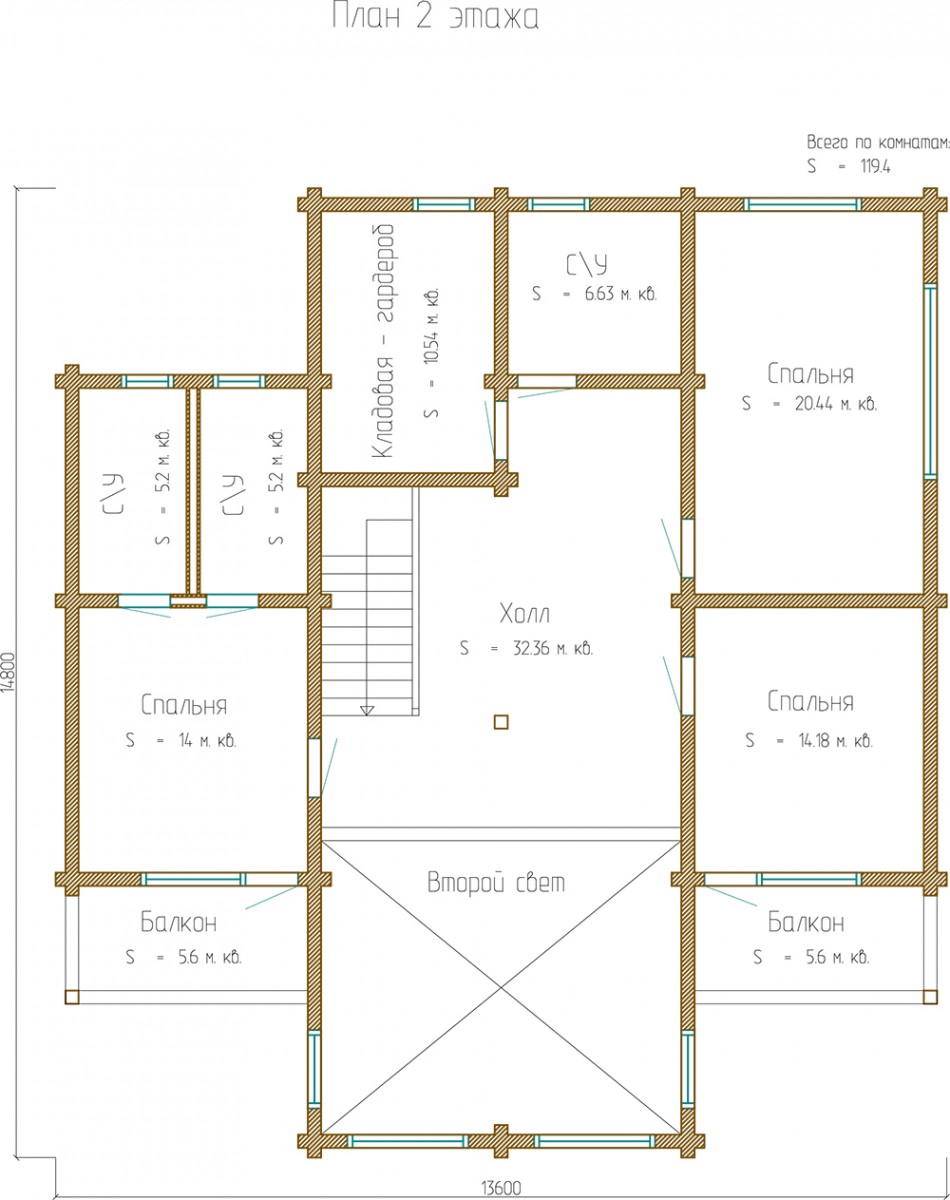
Второй этаж
Параметры проекта:
Параметры проекта:
Площадь: 267.7 м
2
Площадь 1 этажа: 148.32 м
2
Площадь 2 этажа: 119.4 м
2
Наш телефон
8 800 770-76-03
Остались вопросы? Задайте их нам
Задать вопрос
Узнать стоимость